最好看的2018中文电影-最好看的2020年中文-最近2019年中文字幕-最近免费中文字幕中文高清百度

安徽天思建筑裝飾-合肥工裝公司
周一至周六(8:00-18:00)服務熱線:

0551-65568226

全國24H服務熱線:

18055117184(微信同號)

合肥工裝公司-天思建筑裝飾
高端辦公室裝修/ 設計
酒店賓館裝修/ 設計
教育機構裝修/ 設計
醫療機構裝修/ 設計
餐飲空間裝修/設計
會所空間裝修/設計
工廠廠房裝修/ 設計
店面空間裝修/ 設計
商業空間裝修/ 設計
家裝/ 設計
教育培訓案例

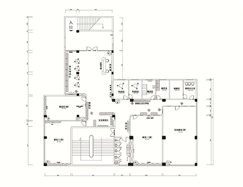
合肥東方愛嬰早教中心裝修案例

來源:天思裝飾 作者: 天思空間裝飾
發布時間:2017-12-24 15:38:50 點擊:

工程名稱:合肥東方愛嬰早教中心裝修案例

裝修類型:設計+施工

房屋面積:900平米

平面方案圖:

效果圖:
合肥東方愛嬰早教中心裝修

 

相關文章
  • 上一篇:返回列表
  • 下一篇:莫比思國際美語學校