最好看的2018中文电影-最好看的2020年中文-最近2019年中文字幕-最近免费中文字幕中文高清百度

安徽天思建筑裝飾-合肥工裝公司
周一至周六(8:00-18:00)服務熱線:

0551-65568226

全國24H服務熱線:

18055117184(微信同號)

合肥工裝公司-天思建筑裝飾
高端辦公室裝修/ 設計
酒店賓館裝修/ 設計
教育機構裝修/ 設計
醫療機構裝修/ 設計
餐飲空間裝修/設計
會所空間裝修/設計
工廠廠房裝修/ 設計
店面空間裝修/ 設計
商業空間裝修/ 設計
家裝/ 設計
合肥工廠裝修

合肥廠房裝修設計-507工業廠房改造

來源:天思裝飾 作者: 天思空間裝飾
發布時間:2018-09-03 16:18:00 點擊:

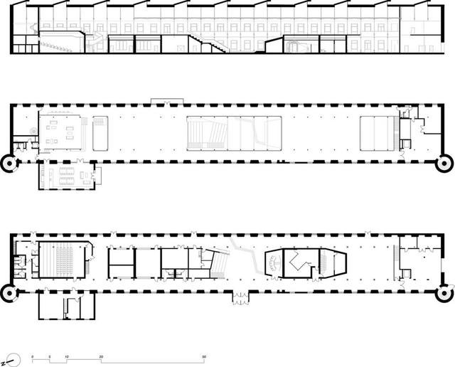
該工作區由 507 廠房改造而來,希望它能變成一個簡單、歡樂、溫暖、模塊化和獨特的。實際是賦予了建筑一個低調的外觀,使它能完美地融入周邊的工業環境。

 

 

更新后的建筑保留了原始的鋼結構
 

 

與樓梯扶手集成的滑梯
 

合肥廠房改造設計

 

這一個簡單、活潑、溫馨并獨特的工作場所
 

 

多功能的休息區
 

 

用于交叉設計的空間
 

 

一層的交通空間
 

 

會議室
 

 

總平面圖
 

 

剖面和平面圖

 
相關文章