最好看的2018中文电影-最好看的2020年中文-最近2019年中文字幕-最近免费中文字幕中文高清百度
周一至周六(8:00-18:00)服務熱線:
0551-65568226
全國24H服務熱線:
18055117184(微信同號)
天思首頁
公司簡介
公司新聞
工裝日記
工程案例
設計團隊
施工團隊
裝修流程
聯系我們
高端辦公室裝修
/ 設計
合肥辦公室裝修
合肥辦公樓裝修
酒店賓館裝修
/ 設計
合肥酒店裝修
合肥賓館裝修
合肥民宿裝修
教育機構裝修
/ 設計
合肥幼兒園裝修
合肥早教中心裝修
合肥托幼園裝修
合肥籃球館裝修
醫療機構裝修
/ 設計
合肥醫院裝修
合肥診所裝修
合肥牙醫診所裝修
合肥私人診所裝修
合肥整形醫院裝修
合肥藥房裝修
合肥中醫館裝修
合肥養老院裝修
餐飲空間裝修
/設計
合肥餐飲店裝修
合肥飯店裝修
合肥火鍋店裝修
合肥咖啡館裝修
合肥蛋糕店裝修
合肥茶樓裝修
會所空間裝修
/設計
合肥會所裝修
合肥網咖裝修
合肥KTV裝修
合肥美容院裝修
合肥影樓裝修
合肥酒吧裝修
工廠廠房裝修
/ 設計
合肥廠房裝修
合肥無塵車間裝修
店面空間裝修
/ 設計
合肥店面裝修
合肥加盟店裝修
合肥連鎖店裝修
合肥專賣店裝修
合肥汽車美容店裝修
合肥美發店裝修
合肥服裝店裝修
合肥4s店裝修
商業空間裝修
/ 設計
合肥商場裝修
合肥售樓部裝修
合肥樣板房裝修
合肥展廳裝修
家裝
/ 設計
合肥別墅裝修
餐廳裝修
當前位置:
安徽天思建筑裝飾
>
餐廳裝修
淮南瘋味肉蟹煲
來源:未知 作者: 天思空間管理
發布時間:2016-09-24 09:16:12 點擊:次
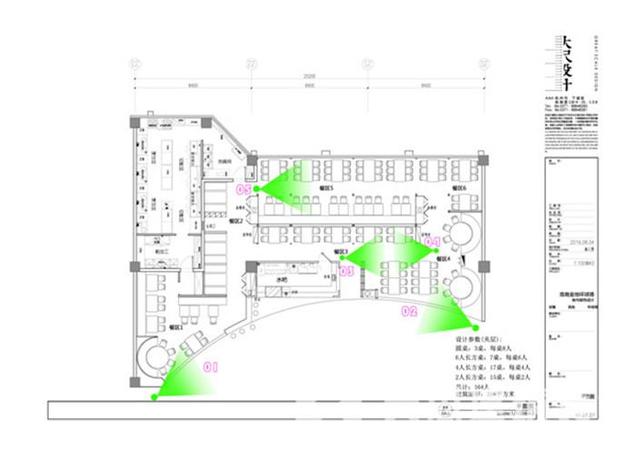
設計施工項目名稱:淮南瘋味肉蟹煲
面積:316平方
項目經理:梅均均
天思建筑裝飾專業提供合肥餐飲店設計,餐飲店裝修施工服務。質量有保障。
相關文章
上一篇:
四川香天下火鍋旗艦店裝修
下一篇:
番茄妹米線裝修效果
合肥工裝裝修
:
合肥辦公室設計
合肥辦公樓裝修
合肥酒店裝修
合肥民宿裝修
合肥醫院裝修
合肥整形醫院裝修
合肥養老院裝修
合肥中醫館裝修
合肥廠房裝修
合肥車間裝修
合肥展廳裝修
合肥4s店裝修
相關城市:
合肥工裝
蕪湖工裝
馬鞍山工裝
銅陵工裝
池州工裝
淮南工裝
滁州工裝
阜陽工裝
蚌埠工裝
宿州工裝
安慶工裝
六安工裝
宣城工裝
黃山工裝
亳州工裝
淮北工裝
巢湖工裝
安徽辦公室裝修
:
合肥辦公室設計
蕪湖辦公室裝修
淮南辦公室裝修
六安辦公室裝修
安慶辦公室裝修
銅陵辦公室裝修
馬鞍山辦公室裝修
滁州辦公室裝修
池州辦公室裝修
黃山辦公室裝修
宣城辦公室裝修
阜陽辦公室裝修
亳州辦公室裝修
蚌埠辦公室裝修
淮北辦公室裝修
宿州辦公室裝修
巢湖辦公室裝修
舒城辦公室裝修
友情鏈接:
泄爆門
廣州弱電工程
超市貨架
建材招商
溫州裝修公司
仿真樹
集成灶加盟
抗倍特板廠家
裝修管理系統
凈水器加盟
幼兒園裝修
圓柱模板
合肥工裝設計公司
洛陽裝修公司
清吧裝修
小安派工
古建筑公司
廣州尚層裝飾
建材信息價
東莞辦公室裝修
合肥凈化工程
全屋定制
空氣過濾器
東莞展廳裝修
展廳設計公司
杭州文物展柜廠家
廣州裝修公司
成都石英砂廠家
本網站使用帝國CMS
安徽天思建筑裝飾設計工程有限公司
公司地址:合肥市望江西路萬科名郡生活廣場首座24層
聯系電話:0551-65568226 / 18055117184
皖ICP備12009035號-1